| Maitrise d'ouvrage: | Ville de Villevêque |
| Localisation: | Villevêque, bords du Loir, Maine-et-Loire (49) |
| Programme: | réhabilitation globale des 2 étages dont la grande salle, isolation visant le BBC, production éléctrique, conception d'une exposition permanente sur les énergies renouvelables |
| Travaux: | Salle de réception communale avec plafond acoustique, pose d'une turbine électrique avec rénovation de la roue à aubes, revêtement résine PU |
| Surface: | SHON: 355m² |
| Maitrise d'oeuvre: | Saillé & Aoustin & Lerays |
| PAC thermodynamique avec production d'eau chaude, production d'électricité avec rénovation de la roue à aubes, exposition sur les énergies renouvelables | |
|---|---|
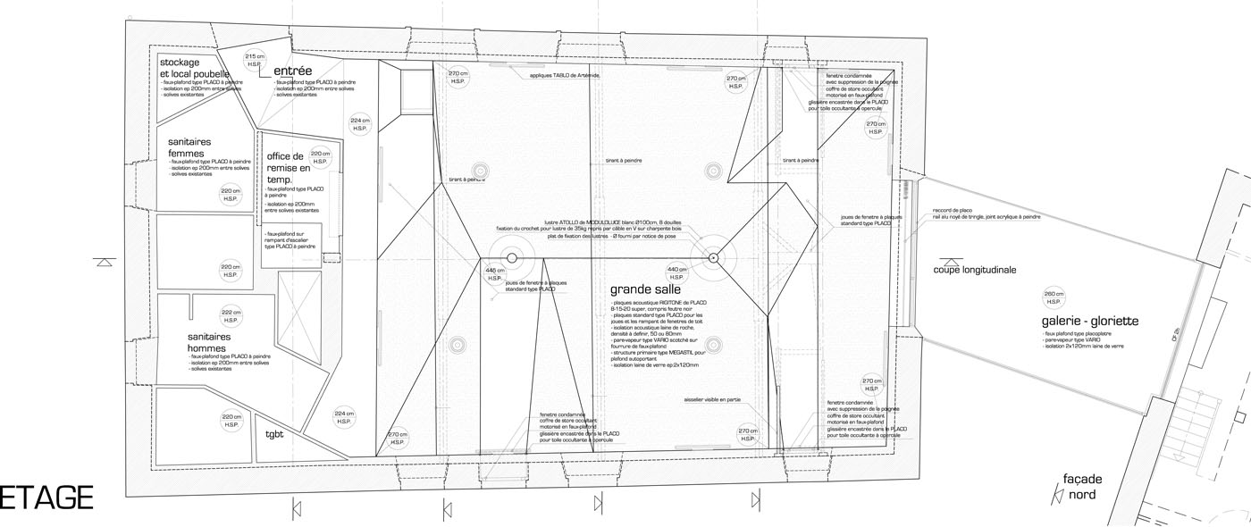
Une salle multifonction (réception, exposition, concert, repas) n'est pas qu'une simple surface à affecter, elle doit être un compromis entre usages et d'acoustiques adaptés. La réverbération ne doit être ni trop faible ni trop forte : concert de musique de chambre / réception publique.
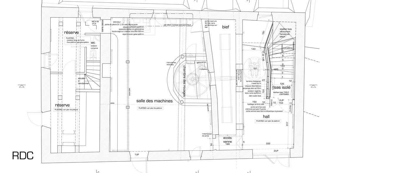
L'inondabilité intégrale du RDC, aléa 4 du PPRI, impose des matériaux bruts permettant l’évacuation rapide de l'eau. Un échange constant avec la ville et le bureau de contrôle s'est donc imposé afin d’établir le plus juste compromis entre normes et besoins.