| Maitrise d'ouvrage: | Centre de l'Habitat / SOLIHA |
| Localisation: | Nantes (44) |
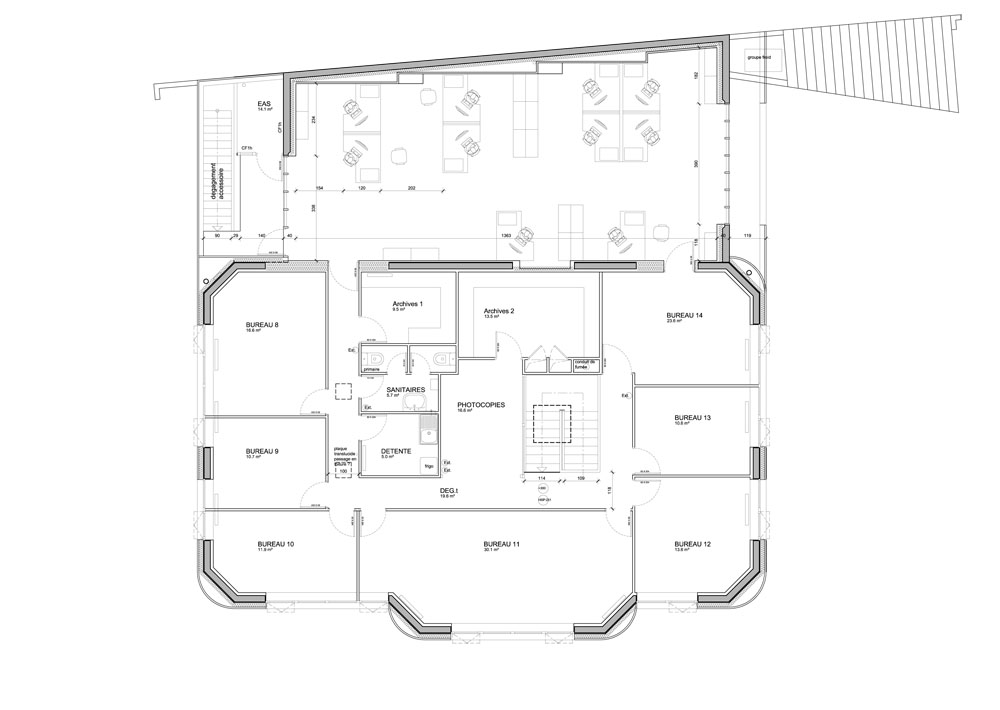
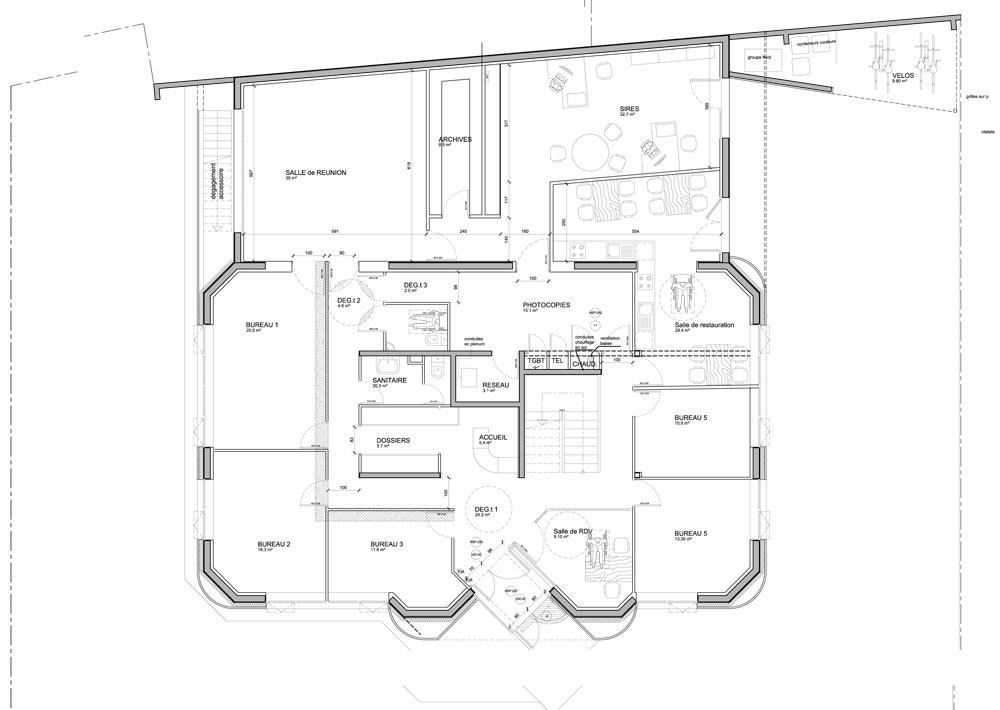
| Programme: | extension 100m² pour 10 postes, accessibilité des 2 niveaux, isolation thermique |
| Travaux: | extension ossature acier sur précédente extension, ITE avec bardage métallique à reflet bronze, rénovation de chaudière |
| Surface: | SHON: 306m², SP: 278m² |
| Maitrise d'oeuvre: | Aoustin |
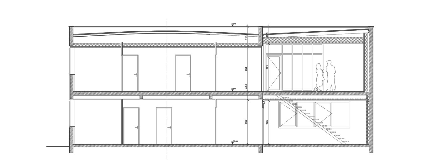
| ITE avec remplacement des menuiseries permettant de maintenir la puissance limitée du chauffage, extension ossature métallique. | |
|---|---|
Une extension de bureaux pose de vraies questions d'accessibilité et met à rude épreuve la recherche d'une évidence, d'une solution claire sur le point crucial de la faisabilité économique du projet.
Par contre la rénovation thermique, dans ce cas de figure, semble très intéressante. Une ITE doublée d'un remplacement des menuiseries permet de faire des économies de chauffage et aussi de limiter les travaux à un simple renouvellement de chaudière.