| Maitrise d'ouvrage: | privée |
| Localisation: | Nantes (44) |
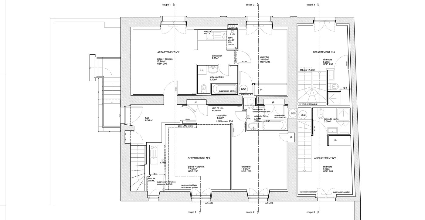
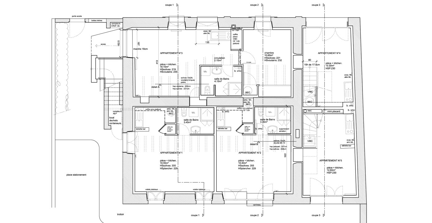
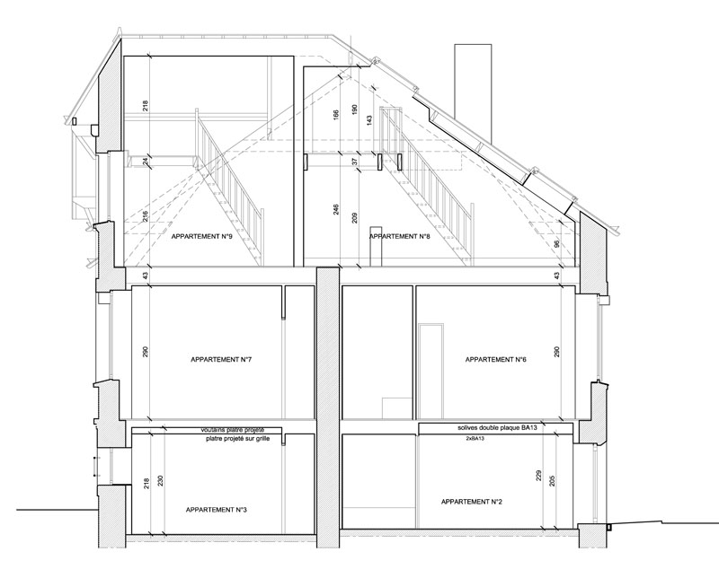
| Programme: | Diagnostic de l'immeuble et réhabilitation globale du RDC en conformité avec le règlement sanitaire départemental (surface minimale des pièces, niveau d'éclairement naturel, hauteur sous plafond) suite à un arrêté d'insalubrité |
| Travaux: | accessibilité, sécurité incendie, cloisonnement, rénovation partielle de plancher, menuiseries, nouvelles ouvertures |
| Surface: | SHON: 393m², SHab: 265m² |
| Maitrise d'oeuvre: | Aoustin |
| - | |
|---|---|
Afin d’être déclaré sanitairement louable, un appartement doit respecter le règlement sanitaire départemental.
Le diagnostic architectural, sanitaire et sécurité incendie permet d'y voir un peu plus clair sur les obligations et l'état du bâti. Des travaux obligatoires ou optionnels chiffrés sont préconisés.