| Maitrise d'ouvrage: | Privée |
| localisation: | Quartier Maître École, Angers (44) |
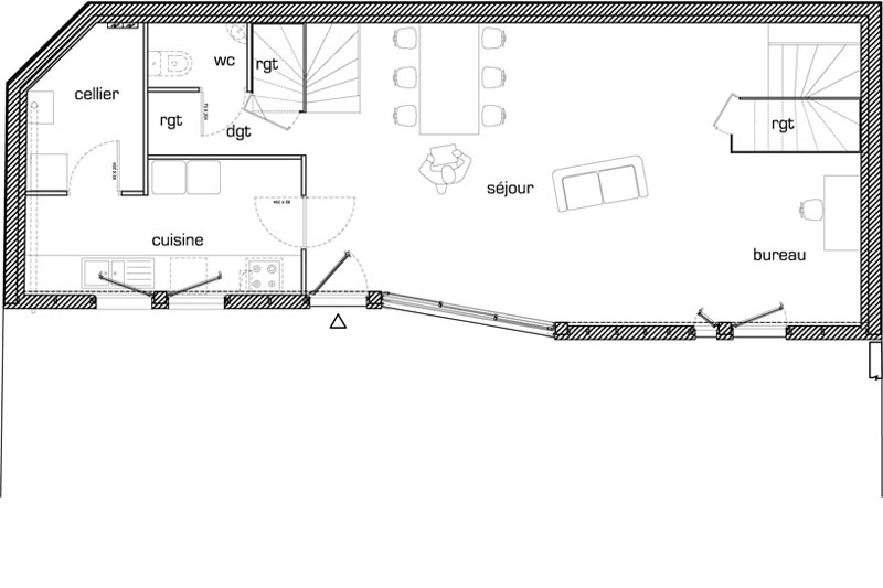
| Programme: | Insérer une habitation individuelle sur une parcelle minimum à forte contrainte urbaine. 3 chambres, 2 salles de bains, séjour, cuisine, cellier |
| Travaux: | bardage et couverture métallique, poteau / poutre BA et BOIS, plancher chauffant. |
| Surface: | Parcelle: 220m², SHON: 116m² |
| Maitrise d'oeuvre: | Saillé & Aoustin |
| Une seule façade plein sud à protéger par une isolation doublée en laine de roche. 2 Escaliers en panneaux de peuplier brutes | |
|---|---|
Le programme ne tient sur la parcelle que si le projet se blottit en limite Nord ou en limite Est. L'ensoleillement Sud est préféré donc la maison se colle en limite nord. Toutes les pièces de vie s'ouvrent sur la façade Sud.
Les 2 escaliers s'expliquent alors par le programme de l'étage "coincé" sous les rampants de la toiture générés par le gabarit. Sans ce doublon, le couloir nécessaire rend impossible le maintien d'une salle d'eau et réduit la surface au sol de la chambre centrale. Les 2 escaliers ne sont donc pas absurdes. Ils apportent en plus l'autonomie parents / enfants et la singularité d'un fonctionnement en boucle.