| Maitrise d'ouvrage: | SCI privée |
| Localisation: | Rezé (44) |
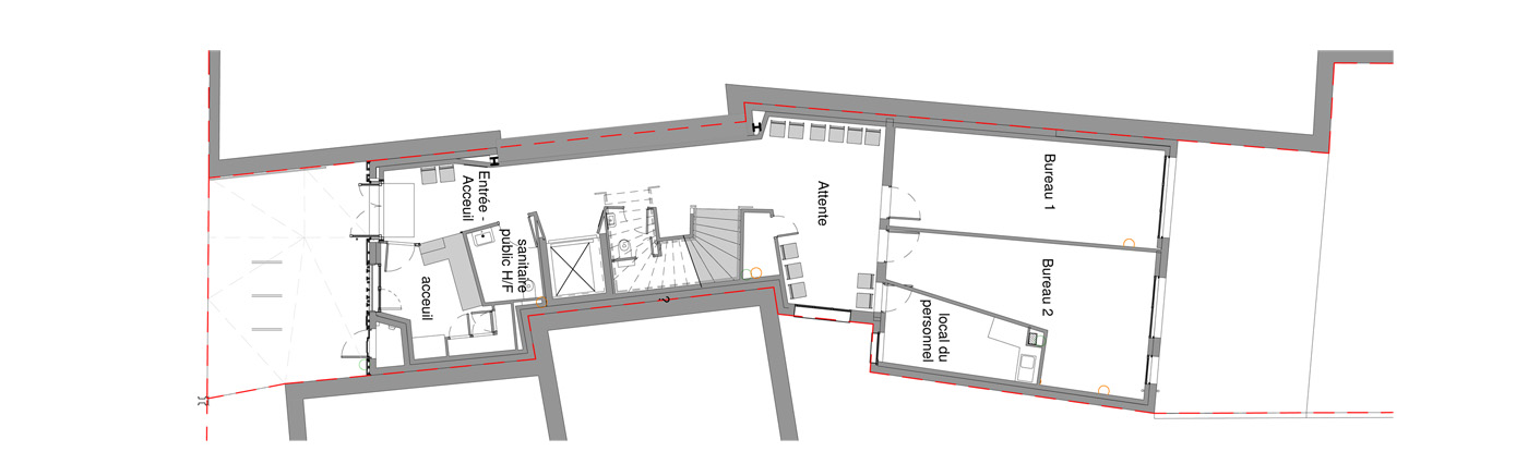
| Programme: | Réhabiliter les différents espaces et créer une extension verticale en ossature bois. ERP (de 5 bureaux de consultation. |
| Travaux: | rénovation globale avec ossature bois, façades bois, panneaux photovoltaique sur toiture métallique |
| Surface: | SP: 208m² |
| Maitrise d'oeuvre: | AO-architecture |
| ossature bois, panneaux photovoltaique, bardage bois. | |
|---|---|
Le programme de cet ERP (etablissement recevant du public) pour l'installation de 5 bureaux de consultation de medecine Générale va s'inscrire au chausse pied dans cette parcelle contrainte toute en longueur.
L'ascenseur et l'escalier aux normes du neuf servira de point pivot entre les différents espaces d'attentes et de services.