| Maitrise d'ouvrage: | Privée |
| localisation: | Nantes (44) |
| Programme: | Petite maison de ville en faubourg, surface en pièce d'été non-chauffé |
| Travaux: | Parpaings à joints minces visibles de l'intérieur peints, isolation extérieure, peau en bac acier, chauffage par poêle à bois. |
| Surface: | shon, 85m² + 15m² |
| Maitrise d'oeuvre: | Saillé & Aoustin |
| RT+30%, isolation ITE, voutains en bois, chauffage poêle, plancher double isolation | |
|---|---|
Le programme exige tout de même un effort écologique autant que faire ce peut et pourquoi pas viser le BBC ?. L'esthétique espérée est ouvertement simple, industrielle et brutaliste.
C'est grâce à cette orientation que le projet est faisable pour ce budget avec des solutions afin de réduire la facture énergétique.
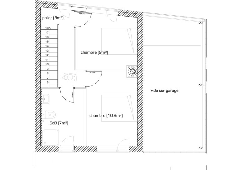
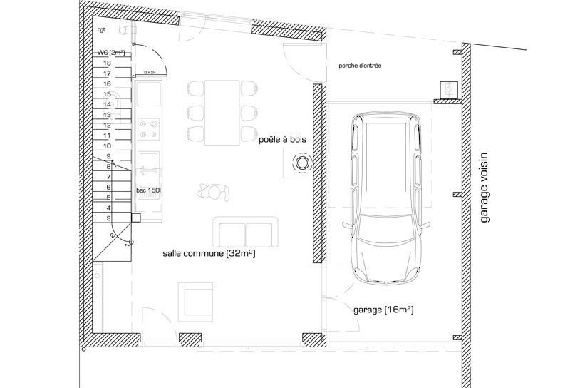
Le projet est radicalement simple: un volume compact et une structure maçonnée nue habillée d'une isolation extérieure pour répondre au BBC et d'un bardage. La maison s'organise comme une maison ouvrière avec sa grande pièce de vie traversante, son poêle à bois au RDC, 2 chambres et 1 salle de bain à l'étage. Le garage double hauteur est traité comme un jardin d'hiver, extension saisonnière du RDC, puisque la voiture est garée dans l'impasse comme il est d'usage de le faire dans ce faubourg.